| Sneen falder i store dele af landet, og det kan være på sin plads med en hurtig opdatering af reglerne for parkering i snevejr. For selvom det pynter i landskabet, så kan sneen godt give lidt udfordringer i trafikken.
Læs mere
Samarbejde er altafgørende for intelligente løsninger i infrastruktur
Der er ofte mange parter involveret i sideløbende projekter i små byområder.
Dette er i høj grad tilfældet i området Rijnhaven i Rotterdam, som både dækker over Katendrecht og Wilhelminapier.
Med byplanlægning og inspirerende projekter er det blevet et af det mest trendy områder i Rotterdam, hvor stærkt tiltrængte nye boliger er kombineret med grønne områder og liveability. Den totale renovering af området blev påbegyndt i starten af det nye årtusinde og er endnu ikke færdiggjort.
Men området summer allerede af liv, og har mange nye iværksættere, som stort set alle passer ind i konceptet “kulinarisk, kreativ og kulturel”. Beboere tiltrækkes af luksuslejligheder, beliggenheden tæt på vandet og udsigten, mens besøgende i området bliver tiltrukket af de mange barer og restauranter, biografen og de regelmæssige kulturbegivenheder.

Alle disse projekter med butikker, hoteller, fritidsaktiviteter og lejligheder skal indeholde et vist antal parkeringspladser. Og fordi de nye bygninger er højhuse, nogle med helt op til 10 etager, er der absolut ikke plads til det nødvendige antal p-pladser på gaden.
En effektiv infrastruktur er nødvendig for at kanalisere besøgende og beboere ind i parkeringsanlæg over og under jorden. Det er en stor fordel at have en parkeringsoperatør med den ekspertise og erfaring, som er nødvendig for at koordinere med mange ejendomsudviklere, til at realisere effektive parkeringsløsninger, når der er brug for at:
Q-Park er allerede involveret i dette distrikt og driver en række parkeringsanlæg i området (De Rotterdam, Boston & Seattle og the Maastoren).

Allerede etableret underjordisk parkeringsanlæg i to niveauer
Det kræver mindre anlægskapital og forkorter byggeprocessen, men træ-alléen:

Tegning af det nyudviklede Santos coffee warehouse
Det historiske Santos coffee warehouse, et vartegn for Katendrecht og et nationalt monument, bliver ombygget til et designcenter.
Stilwerk, det tyske designstormagasin vil huse 20 designbutikker i den fredede bygning og skabe 22 luksus penthouselejligheder på taget.

Nye planer for det underjordiske parkeringsanlæg i to niveauer.
De nye planer for det underjordiske parkeringsanlæg i to planer tager højde for to muligheder for en enkelt ind- og udkørsel med fokus på at skabe en effektiv infrastruktur og effektiv parkering for en lang række brugere.
Den ekstra parkeringskapacitet til højre skal servicere Jumbo og Stilwerk. Der vil blive anlagt en underjordisk gangsti til fodgængere med rullefortov, så handlende ikke behøver at krydse den trafikerede gade.
Over for Bay House og på den anden side af Rijnhaven-havnebassinet er det planlagt yderligere to etagebyggerier til beboelse, Havana & Philadelphia, som er sidste fase af udviklingen af Wilhelminapiers sydside.

Tegning af The Sax
The Saxs parkeringsanlæg får tre underjordiske niveauer, det nederste forbeholdt beboere og to offentlige. Adgang til anlægget forbindes til det eksisterende parkeringsanlæg under Boston & Seattle, så parkeringsanlæggene deler ikke kun ind- og udkørsel men også bomanlæg og betalingsautomater.

The Sax kommer til at dele ind- og udkørsel med Boston & Seattle
I 1923 da Fenix lagerbygningen åbnede sine døre på Katendrecht, var det den største lagerbygning i verden. Under Anden Verdenskrig blev havnen ødelagt, og lagerbygningen blev delt i to. Genopbygningen blev påbegyndt i 1950, hvor bygningen fik sit nuværende navn. Nu mere end 60 år senere, skal lagerbygningen ombygges til et nyt formål.

Tegning af Fenix I
I den græske mytologi er en føniks (Fenix) en længelevende fugl, som jævnligt regenererer eller på anden måde bliver genfødt (kilde Wikipedia).
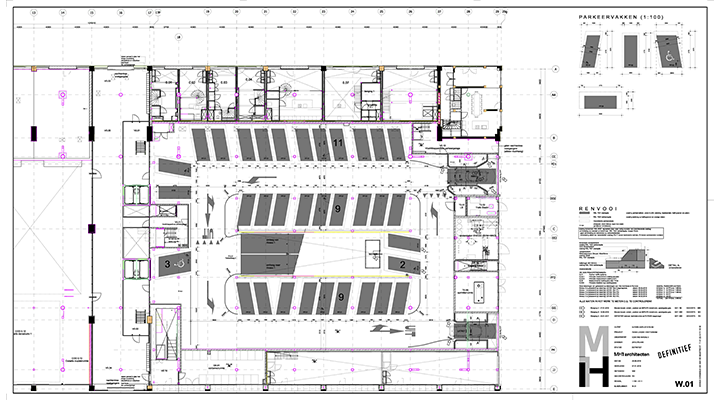
Et lejlighedskompleks er blevet placeret oven på den gamle lagerbygnings originale struktur, mens lagerbygningens facade bevares. Fenix I indeholder butikker og offentlige bekvemmeligheder på gadeniveau og luksuslejligheder på de øverste etager. Der er skabt parkeringsmuligheder for beboere og gæster over jorden inden for de eksisterende fire niveauer.


Indkørsel til Fenix I med rigelig plads til biler, så de ikke blokerer vejen

Plan for Fenix I, som viser skråparkeringen med sikker ensrettet trafik